Ste viacčlenná rodina a premýšľate nad tým, aký projekt domu alebo drevodomu je pre vás tým najvhodnejším? Pri viacčlennej rodine treba myslieť nielen na množstvo úložného priestoru, ale taktiež aj na dosiahnutie súkromia. Poďme sa spoločne pozrieť na projekty drevodomov, ktoré ponúkajú dostatok priestoru, no zároveň nezruinujú vašu peňaženku.
Výber projektu drevodomu
Pri výbere projektu drevodomu je potrebné myslieť na viacero faktorov. Ide napríklad o počet osôb, rozmer úžitkovej plochy, či majiteľ uprednostňuje jednoposchodový bungalow alebo dvojposchodový drevodom. Samozrejme, je potrebné si vopred premyslieť aj na počet izieb, počet kúpeľní, rozlohu zastavanej plochy a samozrejme financie, ktoré je potrebné do stavby domu investovať.
Projekt domu Áron
Dom Áron predstavuje rodinný dom, ktorý patrí do kategórie bungalow. Ide o dom, ktorého zastavaná plocha je 119 m2, z čoho je úžitková plocha 101 m2. Síce je rozmer prijateľný, nie je do neho započítaná garáž. Avšak pri úprave projektu je možné garáž doplniť. Tento nízkoenergetický rodinný dom Áron je možné postaviť aj ako drevodom, ale tiež aj ako murovanú stavbu. Je vhodný najmä pre štvorčlennú rodinu, pričom dom ponúka 4 izby a 1 kúpeľňu.
Projekt domu Hubert
Projekt domu Hubert rovnako predstavuje prízemný 4-izbový dom, ktorý disponuje jednou kúpeľňou. Je vhodný najmä pre 4 osoby a je možné ho postaviť ako do rovinatého, tak aj do svahovitého terénu. Zastavaná plocha tohto domu je 122 m2, z toho však 109 m2 je úžitková plocha. Aj v tomto prípade platí, že je možné projekt Hubert postaviť ako nízkoenergetický drevodom alebo ako murovaný dom.
Projekt domu Diva
Ak vašu domácnosť tvorí 5 osôb, potom je projekt Diva pre vás tým pravým. Projekt domu Diva ponúka zastavanú plochu 140 m2, pričom úžitková plocha je 122 m2. Napriek tomu, že dom disponuje 5 izbami, prislúcha k nemu len 1 kúpeľňa. Projekt domu Diva opäť nezahŕňa garáž, ktorú je však možné na požiadanie vytvoriť.
Projekt domu Mora
Pri dome pre päťčlennú rodinu ostávame aj pri projekte domu Mora. Opäť ide o prízemný rodinný dom patriaci do kategórie bungalow, ktorý ponúka 5 izieb a 1 kúpeľňu. Veľkosť domu je však v porovnaní s projektom Diva menší, a teda zastavaná plocha je 137 m2, z čoho úžitková plocha je 117 m2. Aj tento projekt je možné postaviť ako nízkoenergetický drevodom alebo murovanú stavbu.
Projekt domu Trnka
Pri výbere projektov myslíme aj na šesťčlenné rodiny, pre ktoré je navrhnutý a určený projekt domu Trnka. Ide o prízemný rodinný dom, ktorý ponúka 4 izby, ale v tomto prípade aj 2 kúpeľne, ktoré sú pri 6-člennej rodine nevyhnutné. Zastavaná plocha projektu je 163 m2, z toho 142 m2 je úžitková plocha. Opäť v projekte nie je zahrnutá garáž.
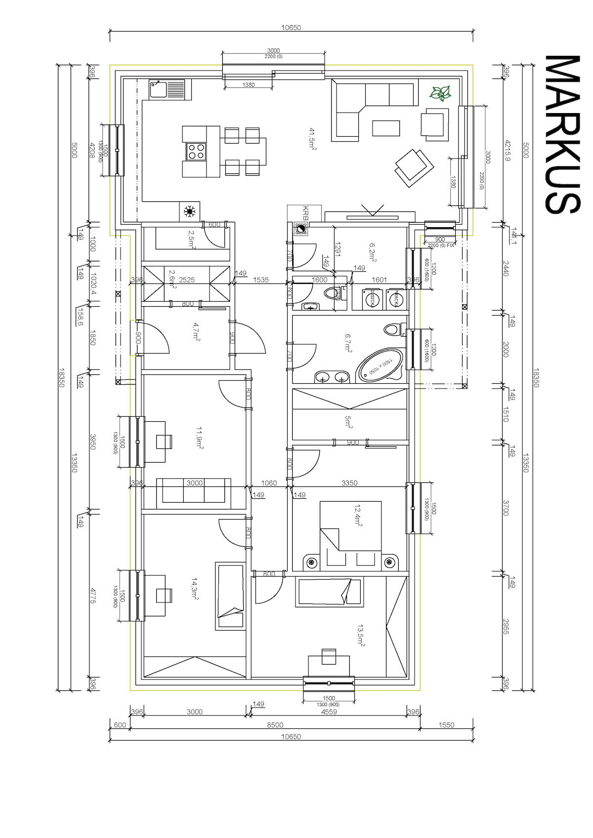
Projekt domu Markus
Výber projektov domov pre viacčlenné rodiny zakončíme projektom domu Markus, ktorý je rovnako určený pre 6-členné rodiny. Ide o bungalow, ktorý má spomedzi všetky projekty najväčšiu zastavanú plochu, a to až 166 m2 a úžitkovú plocha 145 m2. Projekt domu Markus disponuje až šiestimi izbami a jednou kúpeľňou.
Pri všetkých našich projektoch je možné si vybrať či pôjde o nízkoenergetický drevodom alebo o murovanú stavbu. Tiež je možné všetky projekty dodať zrkadlovo, prípadne po dohode vykonať rôzne iné úpravy podľa vašich predstav. Ak potrebujete poradiť, prípadne sa chcete informovať o cenovej ponuke domov, neváhajte nás kontaktovať. Samozrejme, ak si chcete postaviť dom podľa seba, je možné si navrhnúť svoj vlastný projekt domu na mieru.














