Chcete investovať do vlastného bývania a zvažujete, ktorá alternatíva je pre vás najvhodnejšia? Cena bytov a rodinných domov sa líši nielen od ich veľkosti, ale často aj od lokácie. V Drevodom Zvolen staviame moderné nízkoenergetické drevodomy, ktoré sú ideálne pre 3-členné rodiny a navyše za super cenu. Vyberte si projekt domu alebo si nechajte navrhnúť vlastný drevodom na kľúč.
Prečo je montovaný drevodom tou správnou voľbou?
Stavba drevodomu prináša množstvo výhod, ktoré ocení každý člen rodiny. Pozrime sa na niektoré z nich:
- Energetická efektívnosť: Nízkoenergetické drevodomy sú navrhnuté tak, aby minimalizovali energetické straty a tým znižovali vaše mesačné náklady na energie.
- Ekologickosť: Drevo je prírodný materiál, ktorý je obnoviteľný a ekologicky šetrný. Výstavba drevodomu má menší ekologický dopad ako tradičné murované domy.
- Rýchlosť výstavby: Montované drevodomy sú postavené rýchlejšie než tradičné domy, čo znamená, že sa môžete do svojho nového bývania nasťahovať oveľa skôr.
- Flexibilita dizajnu: V Drevodom Zvolen ponúkame rôzne projekty domov, ktoré si môžete prispôsobiť podľa vašich potrieb. Ak máte vlastnú predstavu, môžete si navrhnúť aj vlastný projekt drevodomu.
Nízkoenergetický drevodom na kľúč pre 3-členné rodiny
Nízkoenergetický drevodom na kľúč ponúka množstvo výhod, ktoré určite oceníte nielen pri samotnom bývaní, ale aj pri realizácii domu. V Drevodom Zvolen vám ponúkame komplexné služby, a to od návrhu až po finálnu realizáciu drevodomu. Stačí si vybrať projekt, prispôsobiť ho podľa vašich predstáv a my sa postaráme o všetko ostatné. V Drevodom Zvolen vám ponúkame rôzne projekty drevodomov, ktoré sú ideálne pre 3-členné rodiny.
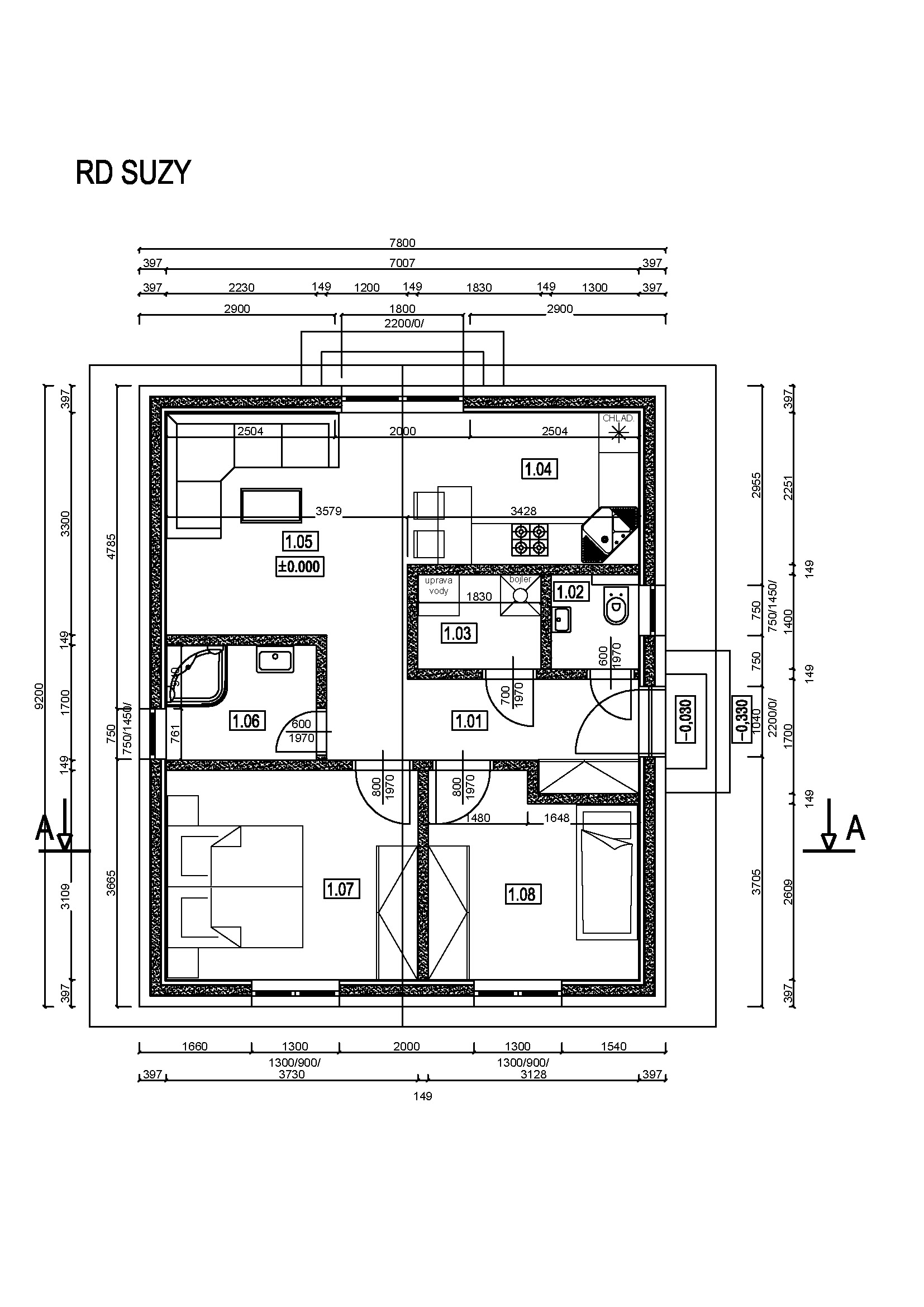
Projekt domu SUZY
Dom SUZY je 4-izbový rodinný dom väčšej veľkostnej kategórie bez garáže. Svojím priestorom je tento dom vhodný pre 3-4 osoby. Ide o bungalow s úžitkovou plochou 59 m².
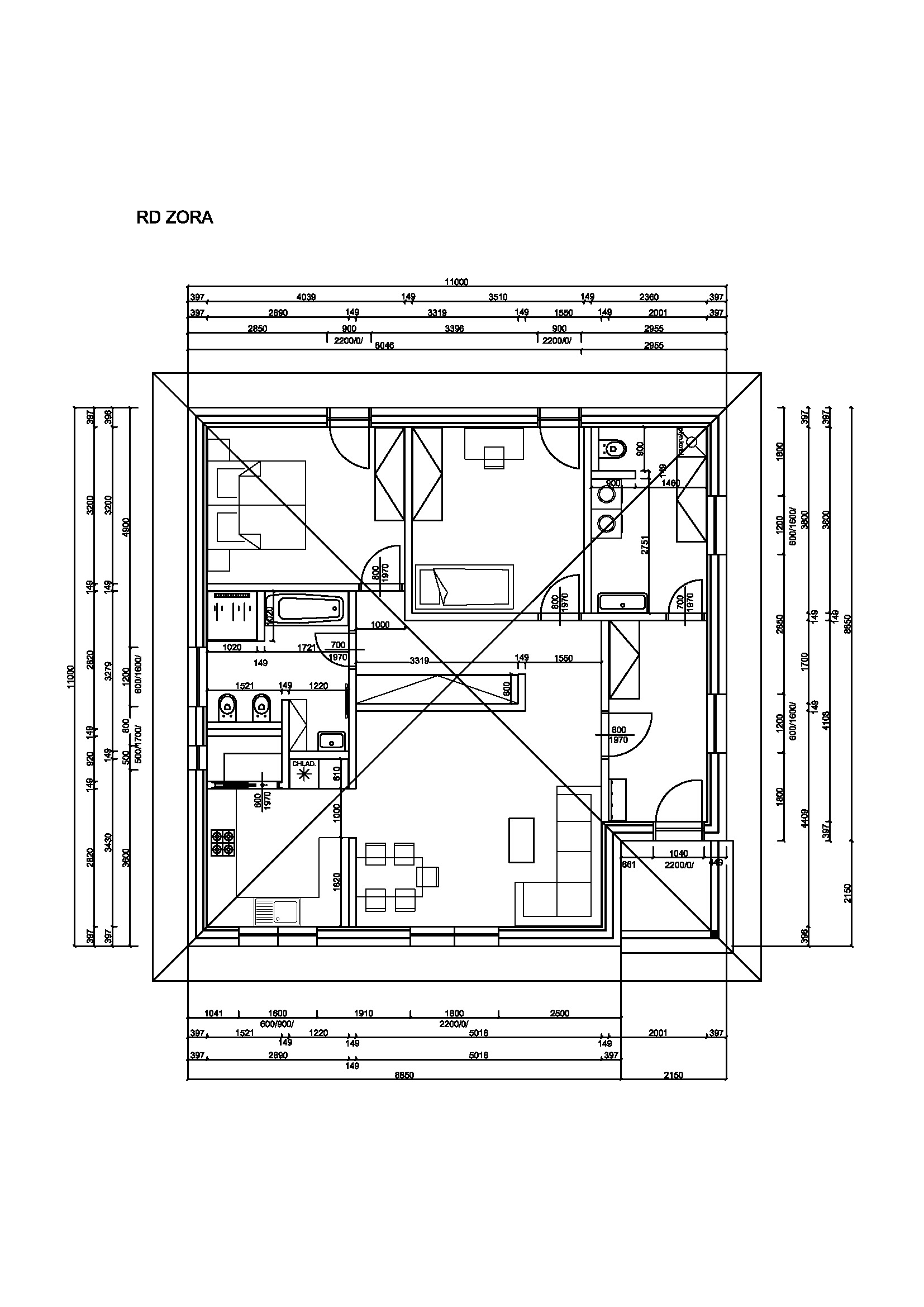
Projekt domu ZORA
Dom ZORA je 3-izbový bungalow väčšej veľkostnej kategórie bez garáže. Drevodom je vybavený 3 izbami a 2 kúpeľňami. Svojím priestorom a úžitkovou plochou 99 m² je tento dom vhodný pre 3-4 osoby.
Projekt domu LINDA
Dom Linda je 3-izbový prízemný rodinný dom menšej veľkostnej kategórie bez garáže. Svojim priestorom je tento dom vhodný pre 3 osoby. Dom je vhodné postaviť do rovinatého, resp. mierne svahovitého terénu. Dom Linda s úžitkovou plochou 78 m² ponúka 3 plnohodnotné izby a 1 kúpeľňu.
Projekt domu AJŠA
Dom AJŠA je 3-izbový prízemný rodinný dom menšej veľkostnej kategórie bez garáže. Svojím priestorom a úžitkovou plochou 73,3 m² ponúka dostatok priestoru pre 3 osoby. Dom je vhodné postaviť do rovinatého, resp. mierne svahovitého terénu. Bungalow AJŠA je navrhnutý s 3 izbami a 1 kúpeľňou.
Projekt domu PALINO
Drevodom PALINO je 3-izbový prízemný rodinný dom menšej veľkostnej kategórie bez garáže a s úžitkovou plochou 93 m². Svojím priestorom je tento dom vhodný pre 3 osoby. Dom PALINO ponúka 3 väčšie izby a 1 kúpeľňu.
Bývajte v modernom drevodome od Drevodom Zvolen
Montované drevodomy majú svoje špecifické výhody, ktoré ocenia najmä rodiny s deťmi a tí, ktorí preferujú moderné a praktické bývanie. Jednou z najväčších výhod, ktoré vám v Drevodom Zvolen ponúkame, je možnosť prispôsobiť si svoj drevodom podľa svojich predstáv. V našej ponuke nájdete rôzne projekty domov, ktoré si môžete modifikovať podľa svojich potrieb a vkusu. Ak máte vlastné predstavy, naši odborníci vám radi pomôžu s návrhom a realizáciou vášho vysnívaného bývania. Nechajte sa inšpirovať našimi projektami a kontaktujte nás ešte dnes. Sme tu, aby sme vám pomohli premeniť váš sen o vlastnom bývaní na skutočnosť. V Drevodom Zvolen staviame drevodomy, ktoré spĺňajú najvyššie štandardy kvality a zároveň sú cenovo dostupné pre každého.

















